- Pomôcky
- Rubriky
- Aktivity
- Partneri
- Poradenstvo-1
- Pre voľný čas
- Poradňa
- Nadácie
- Čo by sme mohli dokázať?
- ARCHÍV INAK OBDARENÍ
- Úprava automobilov
- Nové číslo
Arborétum Borova hora
Láka Vás pekné počasie na výlet a máte radi výlety do prírody? Lenže ste odkázaný na invalidný vozík a unavuje Vás neustále zdolávanie prekážok, ktoré je nielen vyčerpávajúce, ale aj nebezpečné. My zo Spigu máme pre Vás skvelý tip na bezbariérový výlet, ktorý si užije celá rodina vrátane aj tých najmenších. Jedná sa o arborétum Borova hora, ktoré sa nachádza blízkosti sídliska Podborová vo Zvolene. V prípade, že neviete kde presne sa nachádza tak neváhajte použiť aj navigáciu.
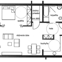
„STAVBA BEZ BARIÉR“ - Byt s voľnou dispozíciou
Začnite si všímať šepkania života
Každý deň nám je šepkané. Cez symboly, cez sny, cez „náhody“, cez maličkosti, cez „nečakané veci“, cez „katastrofy“. Otvorte oči, napnite uši, vašim radcom z druhého sveta, vašim anjelom ani vyššej Prozreteľnosti nie ste ľahostajní. Teraz nepíšem o udalostiach, ktoré sa dejú, lebo boli vami už dávno predtým naplánované, ani o veciach, ktoré sa vám stanú ako následok vašich rozhodnutí a činov. Píšem o záležitostiach, ktorým väčšina ľudí nevenuje pozornosť. Nedávame si otázku, čo by za tým mohlo byť, čo nám mala táto záležitosť poradiť, aké máme spraviť opatrenia, aké máme učiniť nové zmeny vo svojom konaní, aby šli veci ľahšie.
Čo zabíja Lásku?
- Pomôcky
- Rubriky
- Aktivity
- Partneri
- Poradenstvo-1
- Pre voľný čas
- Poradňa
- Nadácie
- Čo by sme mohli dokázať?
- ARCHÍV INAK OBDARENÍ
- Úprava automobilov
- Nové číslo
Arborétum Borova hora
Láka Vás pekné počasie na výlet a máte radi výlety do prírody? Lenže ste odkázaný na invalidný vozík a unavuje Vás neustále zdolávanie prekážok, ktoré je nielen vyčerpávajúce, ale aj nebezpečné. My zo Spigu máme pre Vás skvelý tip na bezbariérový výlet, ktorý si užije celá rodina vrátane aj tých najmenších. Jedná sa o arborétum Borova hora, ktoré sa nachádza blízkosti sídliska Podborová vo Zvolene. V prípade, že neviete kde presne sa nachádza tak neváhajte použiť aj navigáciu.
„STAVBA BEZ BARIÉR“ - Byt s voľnou dispozíciou
Začnite si všímať šepkania života
Každý deň nám je šepkané. Cez symboly, cez sny, cez „náhody“, cez maličkosti, cez „nečakané veci“, cez „katastrofy“. Otvorte oči, napnite uši, vašim radcom z druhého sveta, vašim anjelom ani vyššej Prozreteľnosti nie ste ľahostajní. Teraz nepíšem o udalostiach, ktoré sa dejú, lebo boli vami už dávno predtým naplánované, ani o veciach, ktoré sa vám stanú ako následok vašich rozhodnutí a činov. Píšem o záležitostiach, ktorým väčšina ľudí nevenuje pozornosť. Nedávame si otázku, čo by za tým mohlo byť, čo nám mala táto záležitosť poradiť, aké máme spraviť opatrenia, aké máme učiniť nové zmeny vo svojom konaní, aby šli veci ľahšie.
Čo zabíja Lásku?
Rubriky
Autizmus a život s ním
19.2.2015 sa SPOSA BB zúčastnila úžasného projektu pod názvom „EIGHT HOURS“, ktorý zorganizovala dobrovoľníčka Adine z Rumunska, pôsobiaca v Centre dobrovoľníctva v Banskej Bystrici. Vďaka jej iniciatíve, sme sa mali možnosť stretnúť s Michalom Roškuňakom, mužom s AS, ktorý nám povysvetľoval mnohé možnosti, ktoré môžeme v SPOSA BB rozvinúť smerom k našim ľuďom s autizmom. Musím povedať, že tak inteligentného a duchom bohatého človeka som už dávno nestretla.Lego spája – celoslovenské stretnutie rodín s deťmi s autizmom a iných komunít
Už je to za nami. Pol roka plánovania komunikovania, doťahovania detailov, osobné stretnutia. Keď som vymýšľala pokračovanie k minuloročnému prvému projektu Lego sen, ktorý vzišiel z iniciatívy mladého muža s autizmom Jožka a SPOSA BB ho následne realizovala, napadlo ma, že minulý rok to bol sen a teraz je už čas niečo robiť, nadstavovať.Spomienkový koncert pri príležitosti 26 rokov Nežnej revolúcie
Špecializovaný liečebný ústav Marína Kováčová a Občianske združenie Milan Štefánik vás pozývajú na benefičné podujatie pre zdravotne postihnutých17. novembra 2015 o 15,00 hodine
Ako škodí kuchynská soľ
Jeden z ôsmich odporúčaní v súvislosti s diétou, ktorou môžeme znížiť riziko vysokého krvného tlaku a srdcovo-cievnych chorôb, a čo mnohí prehliadame, je SOĽ! Pozrime sa, čo odporúčajú všetky kardiologické spoločnosti na svete, vrátane Slovenskej kardiologickej spoločnosti či Slovenskej nadácie srdca.Svetielkáči pre dobrú vec: Kúsok zdravia v kúsku mojej krvi
Viete, čo znamenalo v minulosti pustiť si žilou? Narezaním žily a vypustením zlej krvi sa vykonával ozdravný proces, ktorý mal naštartovať regeneráciu organizmu pri jeho ochorení. Tí, čo prežili, mali šťastie. Dnes sme už trošku ďalej, no púšťanie žilou absolvujú celkom pravidelne darcovia krvi a toto slovné spojenie v súvislosti s odberom krvi medzi sebou mnohí bežne používajú.Ako sa správne rozhodnúť pri výbere plienky pre Vaše dieťatko?
V dnešnej dobe už mamičky neváhajú, či pre svoje dieťatko použijú klasickú bavlnenú alebo jednorazovú plienku. Pri cenách bavlnených plienok, vody, energie, časovej náročnosti a pod. všetko hovorí v prospech jednorazových plienok. Ako sa však zorientovať v širokej ponuke takzvaných „pampersiek“, aby ich kvalita (úžitkové parametre) a cena boli v rovnováhe?Špecializovaná nemocnica v obore FBLR, so zameraním najmä na rehabilitačnú liečbu pacientov po náhlej cievnej mozgovej príhode.
V apríli 2019 sa otvorila prvá Špecializovaná nemocnica v obore FBLR na Slovensku so zameraním najmä na rehabilitačnú liečbu pacientov po náhlej cievnej mozgovej príhode a liečbu chorôb dospelého veku.
Ďakujeme, že môžeme pomáhať aj v novom roku 2020
„Rok 2019 sa skončil a my z Nadácie Anjelské Krídla sa tešíme, že môžeme znova pomáhať nezištne a s láskou v roku 2020.“ V roku 2019 sme mali krásne aktivity na pomoc ľuďom.
Sú medzi nami vzácni ľudia, ktorí veľmi radi pomôžu svojimi odbornými skúsenosťami a radami.
Ak máte akékoľvek otázky, pýtajte sa, napíšte alebo im zavolajte.
Ľudmila Gričová, poradenstvo pri vybavovaní príspevkov z upsvar
e mail: ludmila.gricova@gmail.com
Mgr. Zuzana Erbertová, klinický logopéd
Ambulancia klinickej logopédie, Malinovského 2, Brezno
Kontakt: 0908 942 064 (večer od 18 hod).
Mgr. Katka Miklová, špeciálny pedagóg
- aktuálne sa venujem sa deťom s mentálnym, telesným a viacnásobným postihnutím
- moja doterajšia prax sa viaže k deťom so špecifickými poruchami učenia a poruchami správania / dyslexia, dysgrafia, dysortografia, dyskalkúlia, dyspraxia, ADHD,ADD/
Kontakt: 0903712447 (večer od 18 hod).
infoprevas@centrum.sk
PhDr. Mária Sopková, Špecializovaná ambulancia klinickej psychológie
Psychodiagnostika detí a dospelých, individuálna psychoterapia, rodinná terapia, biofeedback a neurofeedback terapia, psychologické poradenstvo pre rodičov, partnerov, rodiny, pomoc v ťažkých životných situáciach, psychológia zdravia, psychotesty vodičov, zbrane, SBS
Kontakt: T. Andrašovana 46, 97401 Banská Bystrica (Mestská časť Belveder - Polyfunkčný Dom Moyses)
Tel.: +421 (0) 048 420 49 68, Mobil: +421 905 305 244
www.narrativelife.sk
Erika Ďurisová, fyzioterapeut - ergoterapeut špecialista, so 43 ročnou praxou celkove, z toho 30 rokov v NRC Kováčová.
Ponúkam poradenstvo v oblasti nácviku sebestačnosti, sebaobslužných úkonov, presunov, starostlivosti o handicapovaného rodinného príslušníka.
V banskobystrickom regióne som ochotná prísť do domácnosti a tieto úkony ukázať, poradiť ako pri starostlivosti postupovať, prípadne poradiť ohľadom potrebných pomôcok na uľahčenie úkonov v bežnom živote pre handicapovaného aj rodinných príslušníkov. Cena dohodou.
Kontakt: 0918/797 054
erika.durisovazv@gmail.com
Komisárka JUDr. Zuzana Stavrovská, Kontakt na Úrad komisára pre osoby so zdravotným postihnutím
Komisár pre osoby so zdravotným postihnutím sa podieľa na ochrane práv osôb so zdravotným postihnutím podporou a presadzovaním práv priznaných osobe so zdravotným postihnutím medzinárodnými zmluvami, ktorými je Slovenská republika viazaná. Kancelárie úradu sú na 4. poschodí s bezbariérovým prístupom. So svojim podnetom sa môžete obrátiť písomným podaním, ak kliknete na web stránku alebo napíšte na e-mail.
Kontakt: Komisárka JUDr. Zuzana Stavrovská
Úrad komisára pre osoby so zdravotným postihnutím Račianska 153, 831 054 Bratislava 3
e-mail: sekretariat@komisar.sk
www.komisarprezdravotnepostihnutych.sk














